একটি ট্রুনিয়ন বল ভালভ হল এক ধরনের গোলাকার গেট ভালভ। এর প্রধান কাঠামো একটি ভালভ বডি, ট্রুনিয়ন, বল এবং সীল নিয়ে গঠিত। ভালভ বডি সাধারণত ঢালাই লোহা বা ইস্পাত দিয়ে তৈরি। বলটি একটি ভালভ কোর এবং একটি বল সিল রিং নিয়ে গঠিত। ট্রুনিয়ন বলটিকে সমর্থন করে এবং ঘোরায়, ভালভ অপারেশনের সময় বলের ঘূর্ণন এবং তরল নিয়ন্ত্রণ সক্ষম করে।
একটি ট্রুনিয়ন বল ভালভের কাজের নীতি
একটি ট্রুনিয়ন বল ভালভের কাজের নীতিটি বেশ সহজ: এটি বলটিকে ঘোরানোর মাধ্যমে তরল নিয়ন্ত্রণ করে। বলটি যখন ভালভ বডি প্যাসেজে স্পর্শকভাবে ঘোরে, তখন তরল প্রবাহিত হয়; যখন বলটি ভালভ বডি প্যাসেজে লম্বভাবে ঘোরে, তখন ভালভ প্যাসেজটি সম্পূর্ণভাবে বন্ধ হয়ে যায়, ফলে তরল বন্ধ হয়ে যায়-।
একটি ট্রুনিয়ন বল ভালভের সিলিং কার্যকারিতা মূলত ভালভ কোর এবং বল সিল রিংয়ের গুণমান এবং কাঠামোর উপর নির্ভর করে। সাধারণত, PTFE বা নাইট্রিল রাবারের মতো উপকরণ দিয়ে তৈরি অত্যন্ত ইলাস্টিক বল সিল রিংগুলি ভালভ সিলিং এবং পরিষেবা জীবন নিশ্চিত করতে ব্যবহৃত হয়।
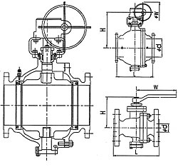
trunnion বল ভালভ অঙ্কন

trunnion বল ভালভ আকার

কাঠামোগত বৈশিষ্ট্য
- ফিক্সড বলের ডিজাইন: ট্রুনিয়ন সাপোর্ট স্ট্রাকচার নিশ্চিত করে যে বলটি উচ্চ চাপে স্থিতিশীল থাকে, ভালভ সিটের সাথে ঘর্ষণ এবং পরিধান কমায় এবং ভালভের আয়ু বাড়ায়।
- দ্বিমুখী সিল করার ক্ষমতা: স্প্রিং-লোড করা ভালভ সিট বা ধাতব সীল গঠন নিশ্চিত করে-নিম্ন-চাপ এবং উচ্চ-চাপ সিস্টেম উভয় ক্ষেত্রেই লিক প্রুফ সিলিং, এবং উভয় দিকেই চাপ সহ্য করতে পারে।
- কম অপারেটিং টর্ক: ট্রুনিয়ন ডিজাইন ভালভ খুলতে এবং বন্ধ করার জন্য প্রয়োজনীয় টর্ককে কমিয়ে দেয়, যা ছোট অ্যাকচুয়েটর এবং কম অপারেটিং খরচের জন্য অনুমতি দেয়।
- অ্যান্টি-ফ্লাইআউট স্টেম স্ট্রাকচার: ভালভ স্টেমটি একটি বিশেষ ডিজাইন (যেমন একটি অ্যান্টি-ফ্লাইআউট স্ট্রাকচার) দ্বারা স্থির করা হয় যাতে হঠাৎ চাপের পরিবর্তনের কারণে স্টেমটি পপ আউট না হয়, নিরাপত্তার উন্নতি হয়।
- উচ্চ প্রবাহের হার ডিজাইন: বলের ছিদ্রের ব্যাস পাইপের অভ্যন্তরীণ ব্যাসের সাথে মেলে, চাপ ড্রপ হ্রাস করে এবং উচ্চ প্রবাহ হার অ্যাপ্লিকেশনের জন্য উপযুক্ত করে তোলে।
কর্মক্ষমতা সুবিধা
- উচ্চ চাপ এবং উচ্চ তাপমাত্রা প্রতিরোধ: আমদানি করা ট্রুনিয়ন বল ভালভ 6000 psig (413 বার) থেকে 10000 psig (689 বার) পর্যন্ত চাপ সহ্য করতে পারে, একটি অপারেটিং তাপমাত্রা পরিসীমা -17 ডিগ্রি থেকে 232 ডিগ্রি, এবং কিছু কম- মডেল থেকে 5 ডিগ্রি কম পর্যন্ত। উচ্চ জারা প্রতিরোধ: ভালভ বডি, বল এবং স্টেম সাধারণত ক্ষয়-প্রতিরোধী উপাদান যেমন F316 স্টেইনলেস স্টিল দিয়ে তৈরি, যা রাসায়নিক এবং পেট্রোলিয়াম শিল্পের মতো ক্ষয়কারী মিডিয়া পরিবেশের জন্য উপযুক্ত।
- চমৎকার সিলিং পারফরম্যান্স: PTFE এবং RPTFE-এর মতো উচ্চ-পারফরম্যান্স সিলিং উপকরণ ব্যবহার করে, নির্ভুল মেশিনিং প্রক্রিয়ার সাথে মিলিত, দীর্ঘ-সিলিংয়ের নির্ভরযোগ্যতা নিশ্চিত করে এবং ফুটো হওয়ার ঝুঁকি কমায়।
- দীর্ঘ পরিষেবা জীবন এবং কম রক্ষণাবেক্ষণ: ফিক্সড বল এবং ট্রুনিয়ন সাপোর্ট স্ট্রাকচার পরিধান কমায়, এবং স্ব-লুব্রিকেটিং ভালভ সিট ডিজাইন রক্ষণাবেক্ষণের ফ্রিকোয়েন্সি এবং খরচ কমায়।
সাধারণ অ্যাপ্লিকেশন পরিস্থিতি
- পেট্রোকেমিক্যাল শিল্প: উচ্চ-চাপ, উচ্চ-তাপমাত্রার পাইপলাইন সিস্টেমে ব্যবহৃত হয় যেমন তেলের পাইপলাইন এবং পরিশোধন ইউনিটগুলি অশোধিত তেল এবং প্রাকৃতিক গ্যাসের মতো মিডিয়া পরিচালনা করতে।
- পাওয়ার ইন্ডাস্ট্রি: পাওয়ার প্ল্যান্টের বয়লার, বাষ্প পাইপলাইন এবং অন্যান্য সিস্টেমে বাষ্প বা জলের প্রবাহ নিয়ন্ত্রণ করে, তীব্র চাপ এবং তাপমাত্রার পরিবর্তন সহ্য করে।
- ধাতব শিল্প: উচ্চ তাপমাত্রায় গলিত ধাতু এবং ক্ষয়কারী গ্যাস যেমন ব্লাস্ট ফার্নেস গ্যাস পাইপলাইনের মতো মিডিয়া পরিচালনা করে।
- জল চিকিত্সা: জল চিকিত্সা প্রক্রিয়াগুলির স্থিতিশীল অপারেশন নিশ্চিত করতে জল প্রবাহ এবং রাসায়নিক সংযোজন নিয়ন্ত্রণ করে।
- খাদ্য, পানীয় এবং ফার্মাসিউটিক্যাল শিল্প: তরল পরিবহন এবং প্রক্রিয়া নিয়ন্ত্রণের জন্য ব্যবহৃত খাদ্য নিরাপত্তা এবং পরিচ্ছন্নতার প্রয়োজনীয়তা পূরণের জন্য একটি স্যানিটারি নকশা গ্রহণ করা।
- অন্যান্য শিল্প খাত: যেমন কাগজ তৈরি, মহাকাশ, এবং অন্যান্য পরিস্থিতিতে নির্ভরযোগ্য তরল নিয়ন্ত্রণ প্রয়োজন।
মূল নির্বাচন ফ্যাক্টর
- অপারেটিং চাপ এবং তাপমাত্রা: নিরাপদ অপারেশন নিশ্চিত করতে পাইপলাইনের সর্বোচ্চ চাপ এবং তাপমাত্রার উপর ভিত্তি করে ভালভ মডেল নির্বাচন করুন।
- মিডিয়া বৈশিষ্ট্য: মিডিয়ার ক্ষয়কারীতা, সান্দ্রতা এবং তাপমাত্রার উপর ভিত্তি করে ভালভ বডি উপাদান (যেমন, স্টেইনলেস স্টীল, কার্বন ইস্পাত) এবং সিলিং উপাদান (যেমন, PTFE, ধাতব সীল) নির্বাচন করুন।
- সংযোগ পদ্ধতি: পাইপিং সিস্টেমের উপর ভিত্তি করে ফ্ল্যাঞ্জ, থ্রেডেড বা ঢালাই সংযোগ নির্বাচন করুন।
- অপারেশন পদ্ধতি: প্রয়োজন অনুযায়ী ম্যানুয়াল, বায়ুসংক্রান্ত বা বৈদ্যুতিক অপারেশন নির্বাচন করুন; বুদ্ধিমান নিয়ন্ত্রণ ব্যবস্থা স্বয়ংক্রিয় পরিস্থিতিতে কনফিগার করা যেতে পারে.
